общая площадь комплекса
Бутик-промтехнопарк класса А+ в Митино для производства и бизнеса
8 предложений аренды: производство, мезонинные блоки, офисы, showroom, общепит и вариант объединения в единый контур. Москва, Барышиха 37а, удобный выезд на Пятницкое шоссе, мощность 1,5 МВт и понятные коммерческие условия для бизнеса.
ввод в эксплуатацию
электроэнергия
парковочных мест
Площади для производства, офиса и коммерческих форматов
Объект расположен в Митино по адресу: Москва, Барышиха 37а. Это бутик-промтехнопарк класса A+ для light industrial, офиса, showroom и смешанных бизнес-форматов.
В составе комплекса предусмотрены производственные зоны, офисные этажи, мезонины и общественные пространства. Пространство можно адаптировать под сборку, сервис, back office, showroom или комбинированный формат работы.
Проект развивает компания «АБ Центрум», которая более десяти лет работает как девелопер и генеральный подрядчик коммерческих и промышленных объектов в Москве и Подмосковье.
Концепция сочетает современную индустриальную функцию с комфортом бизнес-среды: приватность, продуманную инфраструктуру и понятный контур для ежедневной работы команды.
6 ворот,
из них 3 с доклевеллером
2 лифта
и 2 грузовых подъемника по 4 т
Пол на отметке0,9 мдля удобной погрузки
Инфраструктура и среда
Проект предлагает не только площади, но и рабочую среду, которая делает объект удобным для команды, клиентов и ежедневной операционной работы.
Среда уровня modern industrial
Чистая архитектурная подача, продуманные сервисы и места для встреч формируют среду, которая поддерживает статус резидента и делает ежедневную работу команды заметно комфортнее.
Что входит в инфраструктуру
Общие пространства спроектированы как рабочее продолжение объекта, а не как формальное дополнение к площадям.
Локация, удобная для сотрудников и логистики
Промтехнопарк расположен в Митино между Пятницким и Волоколамским шоссе. Локация удобна как для ежедневной работы сотрудников, так и для доставки, сервисных выездов и клиентских визитов.
Для отображения карты используются сервисы Яндекс.Карт, которые могут обрабатывать технические данные пользователя. Подробнее — в Политике обработки персональных данных.
Ключевые характеристики комплекса
Ход строительства
Актуальный этап строительства объекта
Новости проекта
Лобби










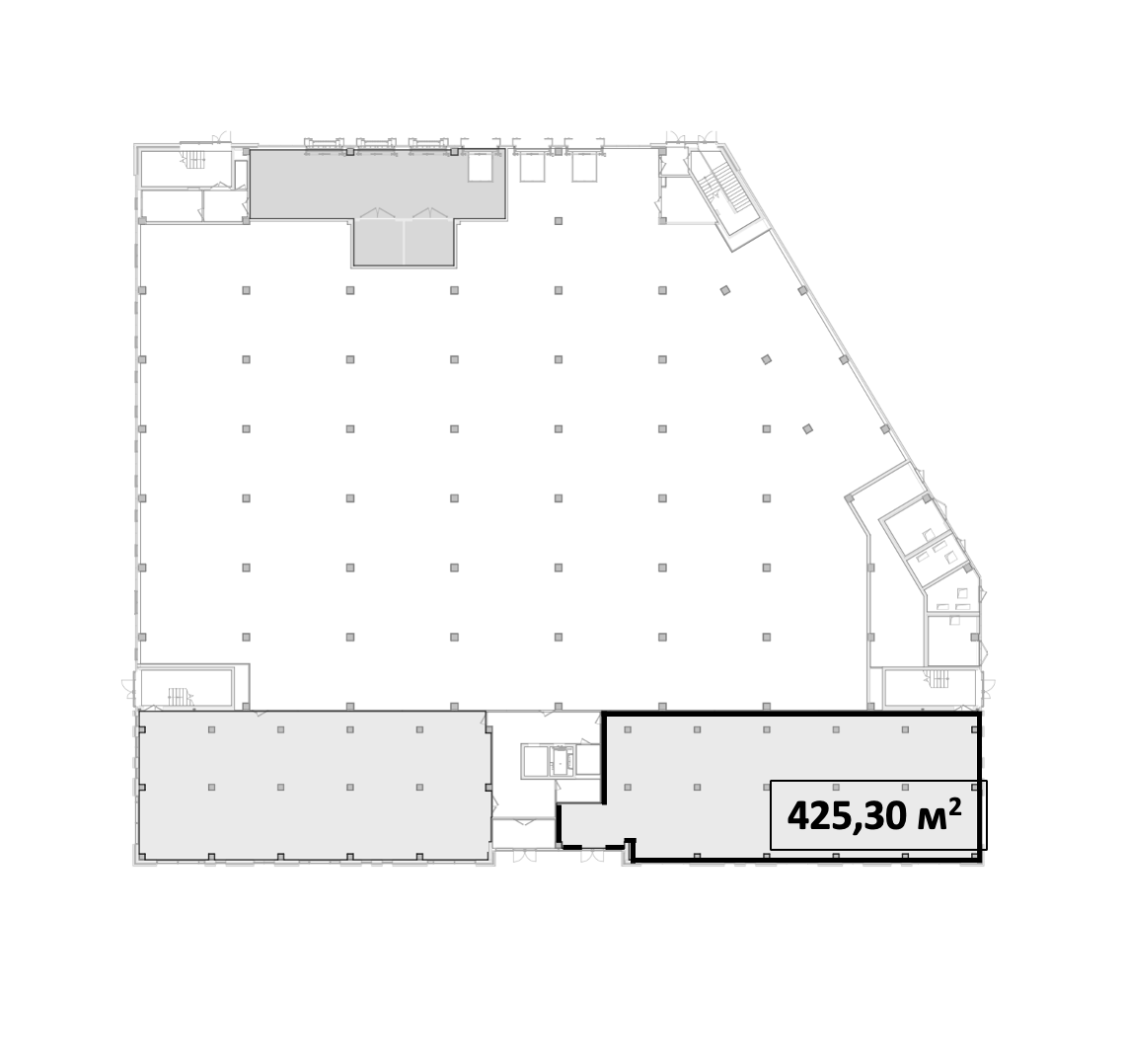
Доступно к аренде
Ниже показаны отдельные вакантные лоты и варианты их объединения. Комплексные предложения сформированы из тех же площадей и не суммируются с отдельными лотами.
Листайте карточки вправо или используйте стрелки, чтобы быстро сравнить предложения по площади, ставке и составу блока.
Подробнее
Коммерческие условия
Базовые условия собраны в одном блоке. Помещения передаются в состоянии Shell & Core.
Указанные арендные ставки приведены без учета НДС 22%. Ставка зависит от формата блока, а парковочные места доступны по запросу.
Заполните короткую форму, и мы предложим подходящее помещение, обсудим ставку, сроки и возможный формат размещения.